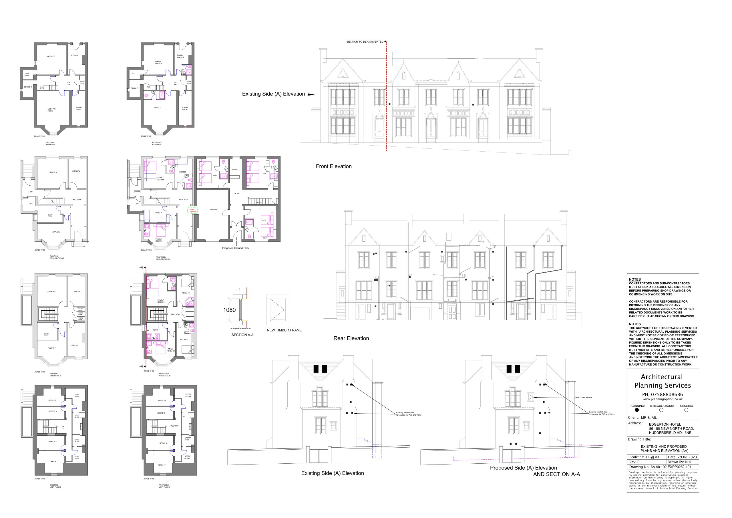
Final Balal edgerton 88 90 huddersfield

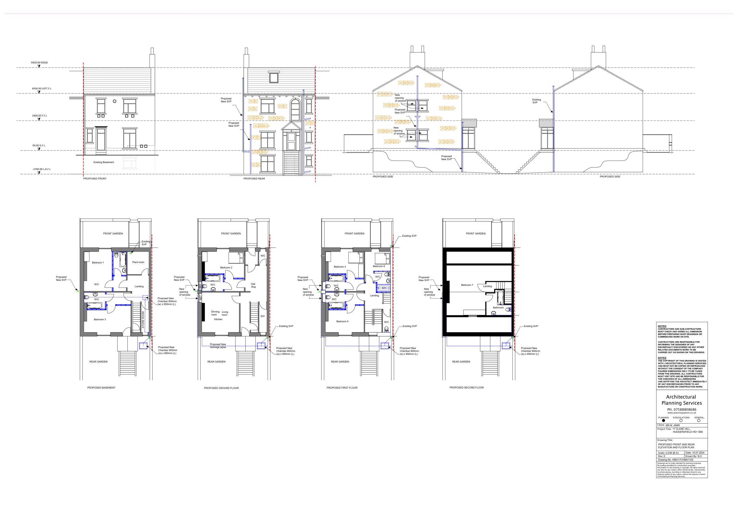
17 Clare Hill HD1 5 BS

Existing plans 17 Clare Hill HD1 5BS

Proposed Plans 17 Clare Hill HD1 5 BS

Proposed Part Building Plans 17 Clare Hill HD1 5 BS

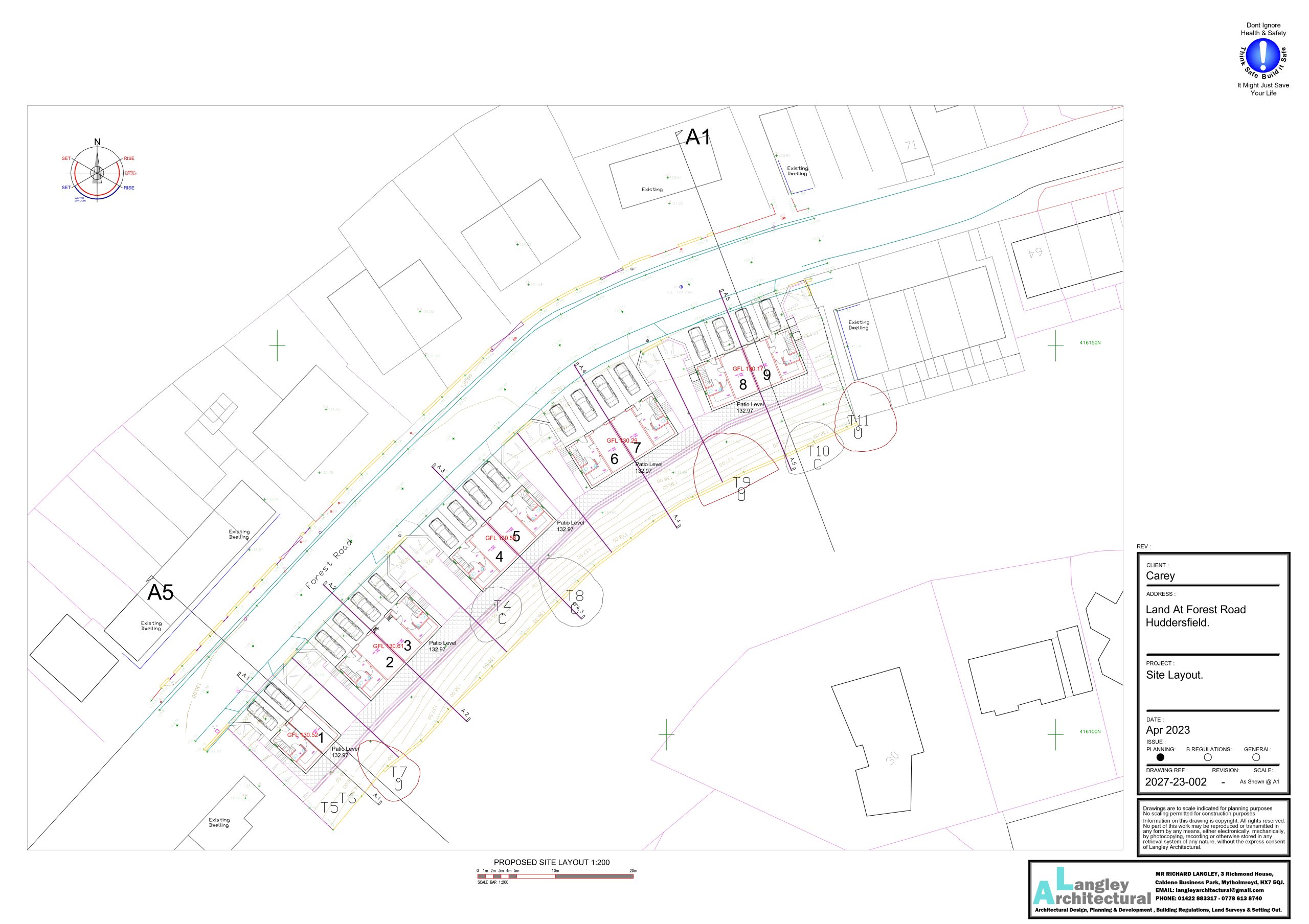
Huddersfield New Builds

Existing Site Block Layout

Proposed Site Block Layout

Grouped Plans and Elevations

Grouped Plans and Elevations

Grouped Plans and Elevations

Proposed Elevation

Proposed Site Block Layout

Proposed Site Block Layout

Grouped Plans and Elevations

Grouped Plans and Elevations