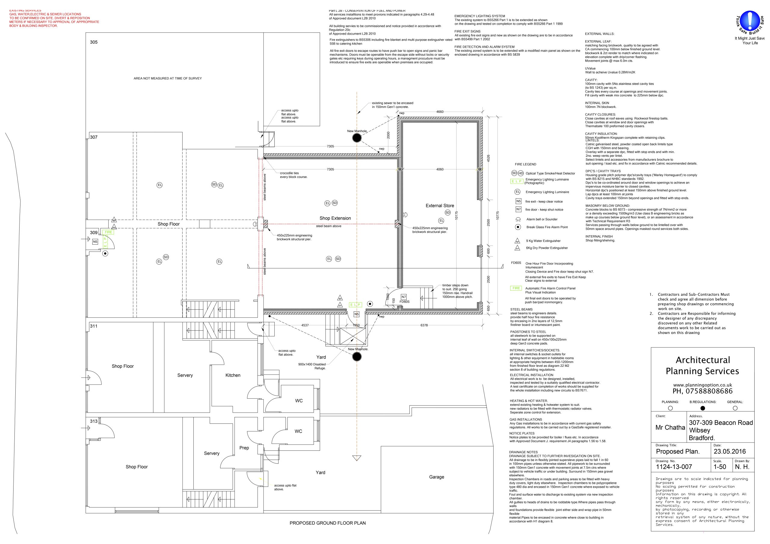
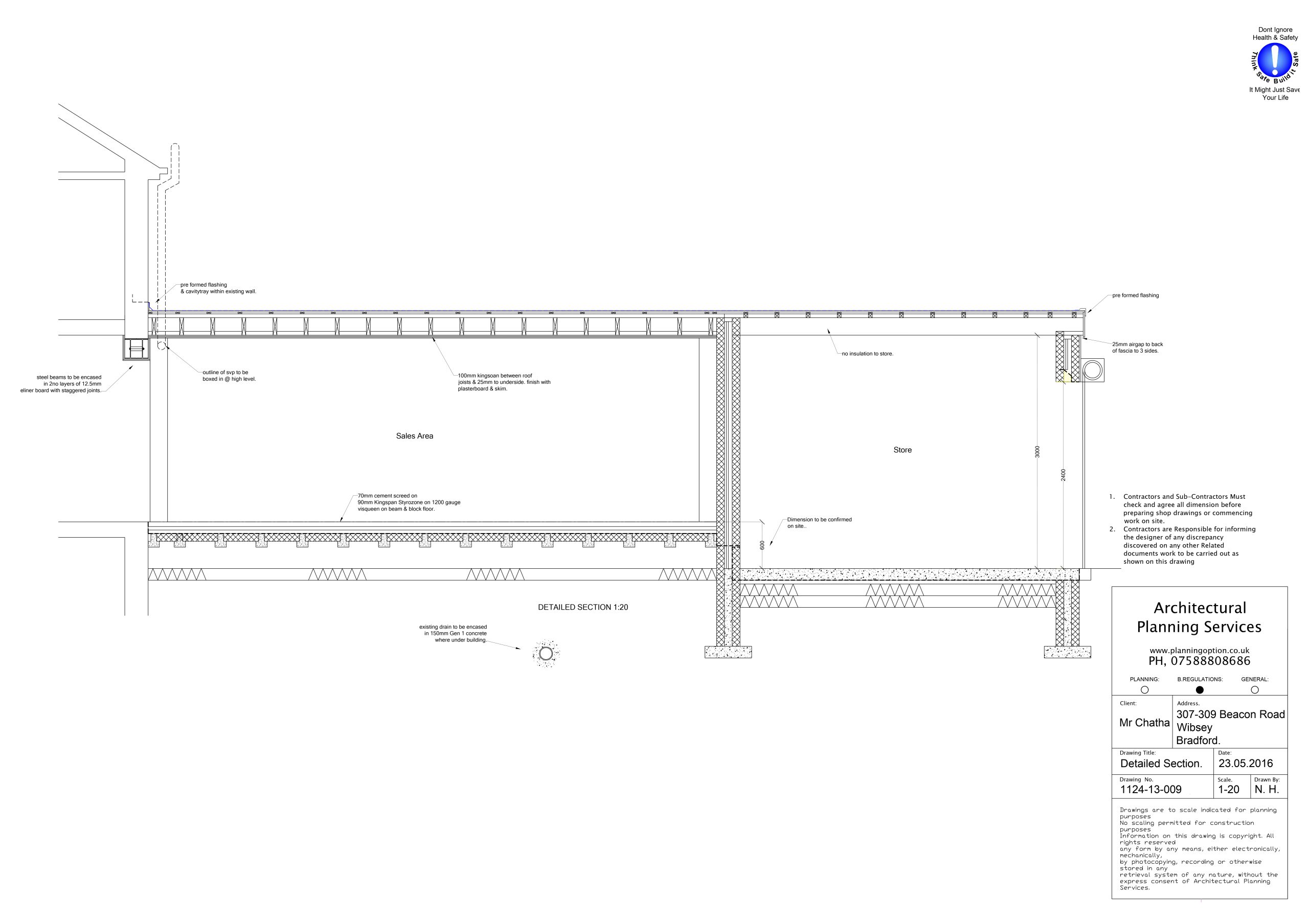
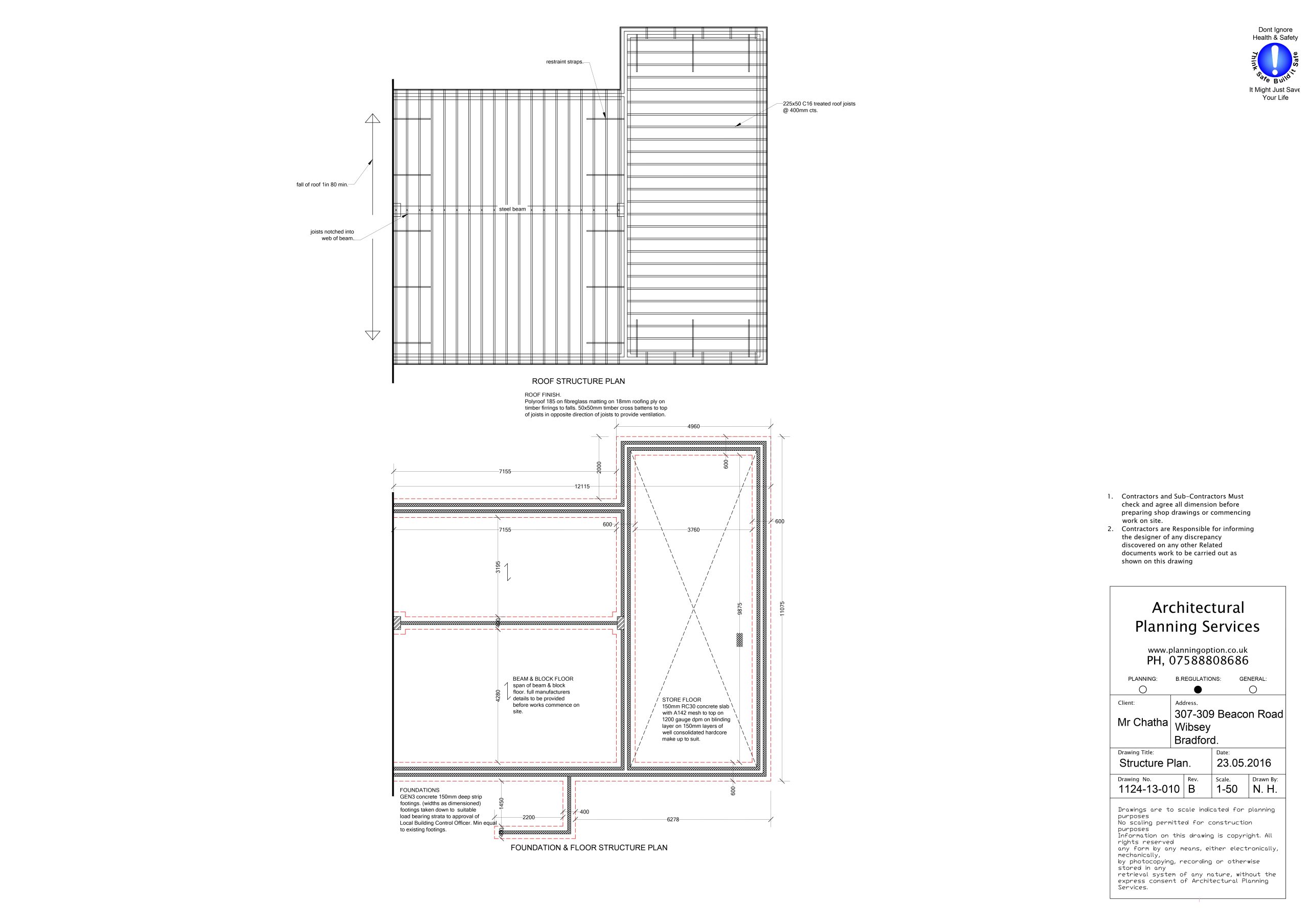
Jaz work - Retail

Jaz work - Retail

Jaz work - Retail

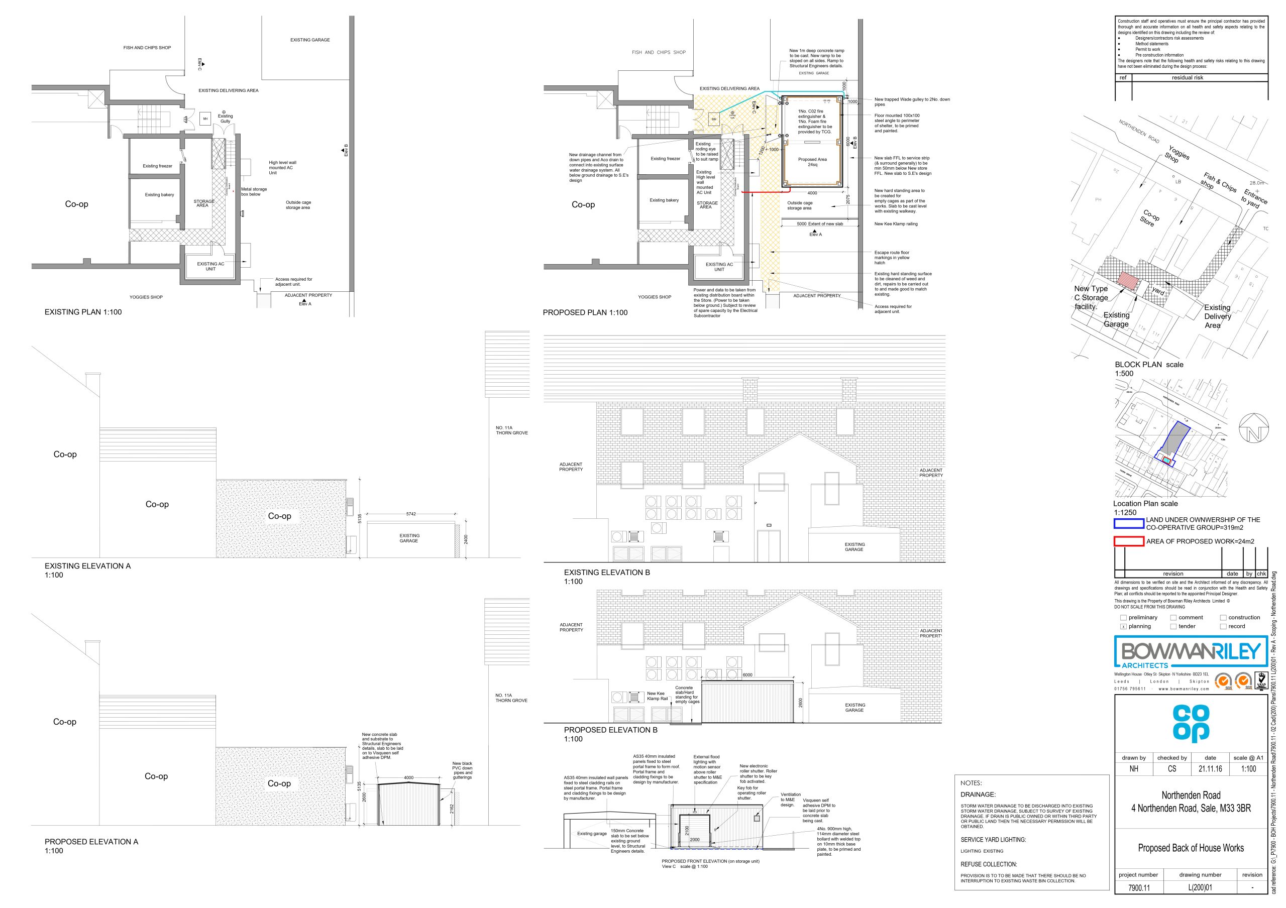
Proposed Back of House Works

Proposed Back of House Works

Northenden Road Planning Drawing

77 lister laneHalifax proposed semi det

Jaz work - Retail